CROSS-SECTION

 
 

FLOOR PLAN

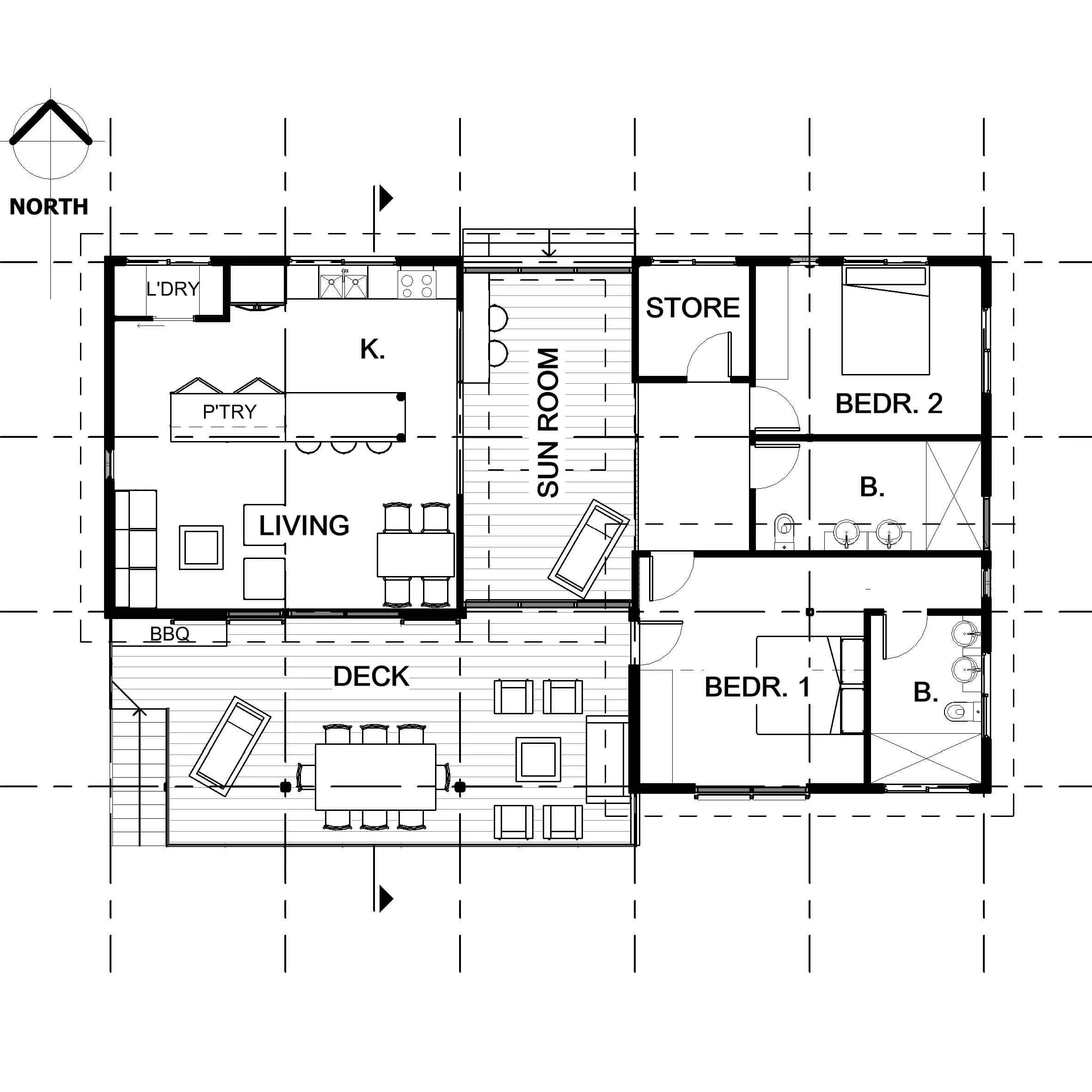
Modular House - 2 Bedroom Residence

Expandable family home, initially designed for a sloping hill with views to the South, with a sun room and north facing clerestory windows The facade is adaptable for different solar aspects.

Custom design options:
- Second bedroom upstairs
- Double storey, e.g. with self-contained unit
- Master bedroom with mezzanine

Type: Studio + Loft (optional)
Area: Studio 25m2, Deck 25m2, Loft 10m2
Wall height: 3.0m / 3.6m with loft

 

Design / climate control

  • Sun room for passive solar heating, directing warm air to adjoining modules or cooling breezes; a multi-functional space that can be used for entertaining, as lounge- or breakfast bar / dining area

  • Shaded verandah, extending breezeway & living room

  • Clerestory windows to master bedroom for additional daylight & cross ventilation (stack effect)

  • Optional: enclosed ground level, 3rd bedroom, mezzanine

Previous
Previous

Modular House - Secondary Dwelling